Immobiliare Taiti

VAIANO MAGAZZINO ARTIGIANALE DI 100 MQ CON ESTERNO A VERDE

Condividi l'immobile su: Facebook Twitter WhatsApp
Print Torna alla lista degli immobili

MQ 100mq Bagni 1 €95.000,00

Cod. immobile: MAG95

11 (10)11 (9)11 (15)11 (3) (11282)11 (5) (11280)11 (6) (11276)11 (14)11 (2)11 (4) (11279)

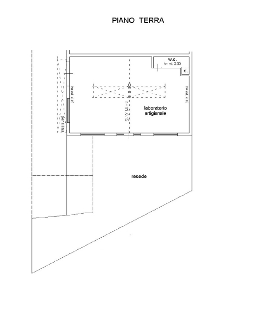
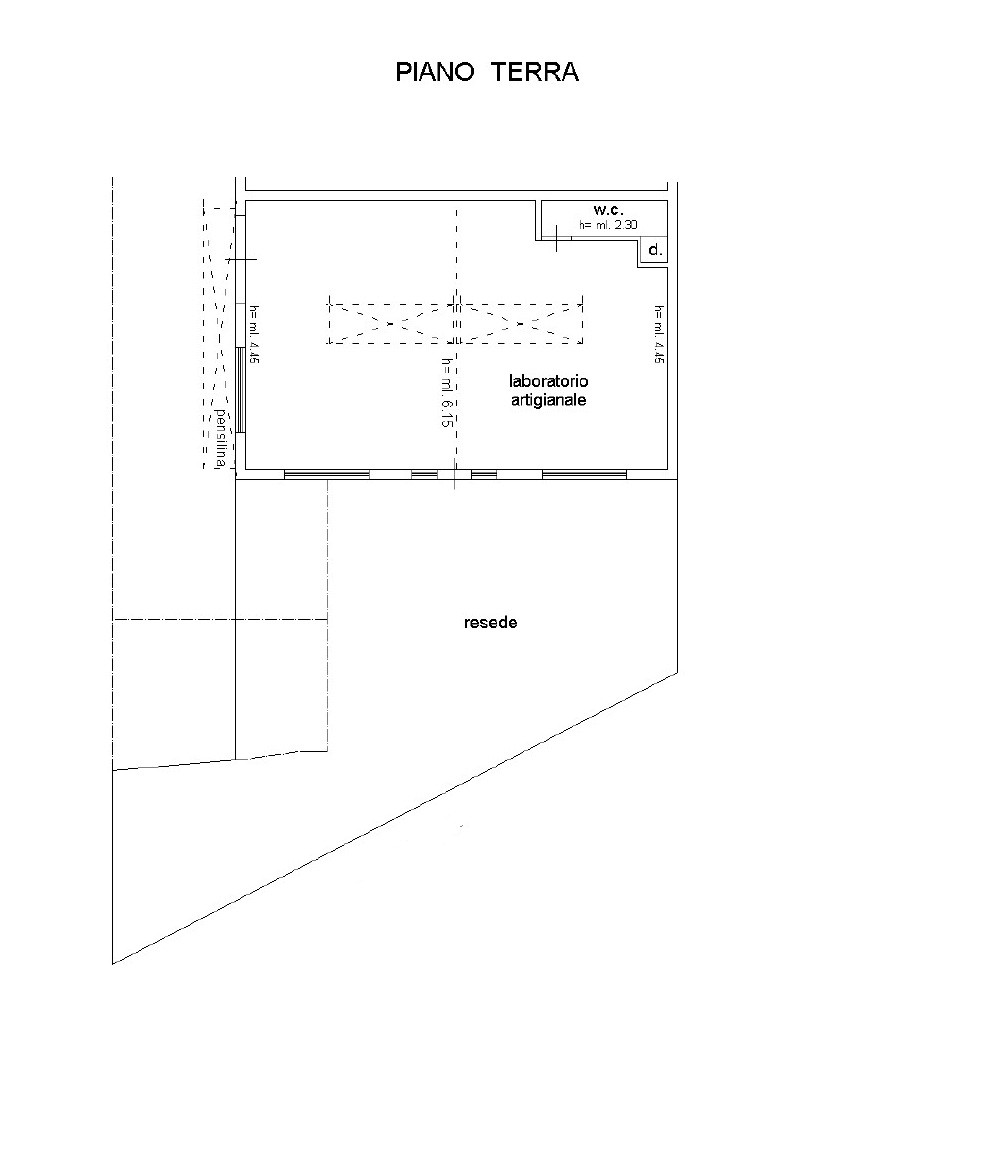
Descrizione immobile

(RIF. MAG95) VAIANO: Posizionato in un ampio complesso industrializzato vendesi laboratorio artigianale di categoria C/3  con una superficie utile di mq. 95,00 ca. con altezze max. interne rispettivamente sotto il colmo della copertura a capanna pari a ml. 6.15 e altezza minima in gronda pari a ml. 4.45, con annesso uno spazio esterno esclusivo a verde. In ottimo stato il laboratorio e composto da unico ampio perimetro con soppalco uso ufficio con antibagno e bagno dotato di doccia. presente impianto elettrico a 380. libero da Dicembre 2025. Acquisto da privato non soggetto ad I.V.A. classe energetica G.

Vuoi maggiori informazioni?

Nome e cognome*

Indirizzo e-mail*

Recapito telefonico

Informazioni dettagliare dell'immobile*

Per migliorare l'esperienza di navigazione questo sito utilizza cookies, anche di terze parti. Clicca su "acconsento" per abilitarne l'uso. Se vuoi saperne di più o negarne l’esecuzione consulta la nostra informativa cookie completa. Acconsento