Immobiliare Taiti

CARMIGNANELLO TERRATETTO CON GIARDINO E GARAGE

Condividi l'immobile su: Facebook Twitter WhatsApp
Print Torna alla lista degli immobili

MQ 180mq Camere 5 Bagni 3 €270.000

Cod. immobile: CA25

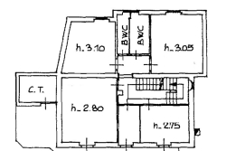
Pianta casa3 (11523)

Descrizione immobile

(Rif. CA25) Carmignanello: Ottimo Terratetto di 180 mq. libero su quattro lati disposto su due livelli con giardino, terrazza e garage. l’immobile è composto al piano terra da resede privata pavimentata di 60 mq, ingresso su salone doppio con caminetto, salotto con camino, cucina abitabile aperta su tinello zona pranzo con accesso al giardino tergale di 180 mq e piccolo bagno di servizio. Tramite scale in cotto si accede al primo piano composto da 4 camere matrimoniali, uno studio, 2 bagni finestrati, oltre una splendida terrazza. Soffitta con accesso da scale in muratura. La proprietà si completa con l’autorimessa di 15 mq e il locale caldaia. Terno singolo a metano. Ottime le finiture interne, soffitti con volte a mattoncini. Tetto in travi in cemento e tabelloni. infissi in legno con persiane in legno.
Classe energetica in fase di redazione.
Ideale anche per due nuclei familiari.
libero subito e già abitabile.

Vuoi maggiori informazioni?

Nome e cognome*

Indirizzo e-mail*

Recapito telefonico

Informazioni dettagliare dell'immobile*

Per migliorare l'esperienza di navigazione questo sito utilizza cookies, anche di terze parti. Clicca su "acconsento" per abilitarne l'uso. Se vuoi saperne di più o negarne l’esecuzione consulta la nostra informativa cookie completa. Acconsento