Immobiliare Taiti

INIZIO VALLATA NUOVO APPARTAMENTO PRONTA CONSEGNA

Condividi l'immobile su: Facebook Twitter WhatsApp
Print Torna alla lista degli immobili

MQ 105mq Camere 2 Bagni 2 €260.000

Cod. immobile: AB02

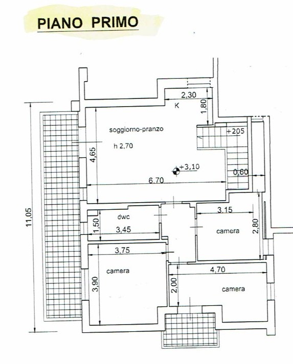
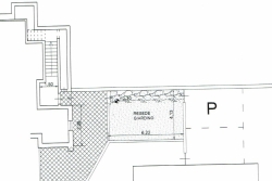
Pianta primo piano1 (9) (11579)1 (11) (11580)1 (12) (11581)1 (13) (11582)Pianta piano terra1 (6) (11577)1 (1) (11575)1 (3) (11576)1 (18) (11585)1 (15) (11583)1 (17) (11584)1 (8) (11578)

Descrizione immobile

(RIF. AB02) La Briglia: 4,5 vani appartamento indipendente di nuova costruzione in pronta consegna. L'unità immobiliare fa parte di una palazzina di sole tre unità, ha un ingresso indipendente e si sviluppa al primo piano. A piano terra un primo ingresso con cancellino si apre sulla resede pavimentata, un bello spazio godibile con inoltre un grazioso giardino di circa 70 mq con al termine un altro cancellino adiacente al posto auto privato; la porta blindata si apre su un piccolo disimpegno dove una rampa di scala accompagna all'appartamento. Ci accoglie un open space, soggiorno con cucina a vista affacciato su terrazza vivibile, attrezzata con caldaia e pillozzo. Rientrando in casa il disimpegno della zona notte mostra un bagno finestrato con doccia e angolo lavatrice/asciugatrice, una camera matrimoniale, due camere singole, una con terrazzo e una con un particolare ripostiglio utilizzabile ad esempio per scarpe e borse, dato la sua formazione tipo cabina armadio, seppur stretto. La proprietà si completa con una cantina a piano terra di lato alla porta d'ingresso e di un posto auto, con la possibilità di acquistarne un secondo. L'appartamento è luminoso, predisposto per l'aria condizionata, in pronta consegna. Di seguito le metrature: appartamento 102,30 - terrazzi 23 - giardino e resede 79,50 - scannafosso (cantina) 15,50 - posto auto 16 - per un totale di mq. convenzionale 122,40.

Vuoi maggiori informazioni?

Nome e cognome*

Indirizzo e-mail*

Recapito telefonico

Informazioni dettagliare dell'immobile*

Per migliorare l'esperienza di navigazione questo sito utilizza cookies, anche di terze parti. Clicca su "acconsento" per abilitarne l'uso. Se vuoi saperne di più o negarne l’esecuzione consulta la nostra informativa cookie completa. Acconsento