Immobiliare Taiti

LA BRIGLIA TERRATETTO 150 MQ CON TERRAZZI E DOPPIA RESEDE

Condividi immobile su:

MQ 150mq Camere 4 Bagni 2 €220.000

Cod. immobile: TM01

1 (6) (11802)1 (8) (11801)1 (4) (11799)24 (11803)33 (11811)31 (11809)32 (11810)1 (10) (11800)1 (15) (11798)1 (7) (11815)23 (11804)1 (14) (11819)30 (11808)22 (11805)TM01 (1)TM01 (2)TM01 (4)

Descrizione immobile

(RIF. TM01) LA BRIGLIA: In Paese vicino ai principali servizi, alimentari, scuola, farmacia in strada interna. l'Immobiliare Taiti propone in vendita un terratetto di circa 150 mq disposto su tre piani. composto:
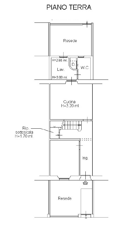
piano terra: da resede frontale pavimentata 20 mq con accesso alla casa, corridoi di ingresso, luminoso soggiorno, spaziosa cucina abitabile, un bagno finestrato completamente ristrutturato nel 2015 e la lavanderia dalla quale si accede alla resede posteriore pavimentata di 35 mq. per mangiare all'aperto.
al primo piano: camera matrimoniale e media entrambe con accesso ad un terrazzo, bagno finestrato.
al secondo piano: due camere matrimoniali. Tutte le camera hanno un balcone con affacci sulle colline.
Attraverso una botola si accede alla soffitta spaziosa e funzionale con scala retrattile come spazio di deposito. L'immobile si presente con dei lavori di riammodernamento. tetto in cemento armato in buono stato, che non necessita interventi immediati. La casa è libera. un contesto tranquillo e ben servito. classe g.

Vuoi maggiori informazioni?

Nome e cognome*

Indirizzo e-mail*

Recapito telefonico

Informazioni dettagliare dell'immobile*

Per migliorare l'esperienza di navigazione questo sito utilizza cookies, anche di terze parti. Clicca su "acconsento" per abilitarne l'uso. Se vuoi saperne di più o negarne l’esecuzione consulta la nostra informativa cookie completa. Acconsento